令和07年11月16日 09時08分 更新
次回更新予定日:令和07年11月17日
荻窪ハウジング 株式会社
エルヴィエント南荻窪物件情報 |
荻窪の賃貸・不動産
お急ぎの方はこちらまでお電話ください
03-5397-8955
トップページへ
>
居住用物件一覧へ
> 物件情報
駅名別一覧
間取一覧
写真一覧
地図一覧
間取りで探す:
ワンルーム
1K
1DK
1LDK
2K
2DK
2LDK
3K以上
家賃で探す:
6万円以下
6万円台
7万円台
8万円台
9万円台
10万台
11万円台
12万円台
13万円台
14万円台
15万円台
16万円以上
地域で探す:
荻窪1丁目
荻窪2丁目
荻窪3丁目
荻窪4丁目
荻窪5丁目
天沼1丁目
天沼2丁目
天沼3丁目
上荻1丁目
上荻2丁目
上荻3丁目
南荻窪1丁目
南荻窪2丁目
南荻窪3丁目
南荻窪4丁目
清水1丁目
桃井1丁目
物件番号
間取画像
駅名
写真画像
住所
バス
徒歩
タイプ
家賃
共益費
階/階建
向き
間取
面積m
2
築年月
詳細
画像
646
荻窪駅
東京都杉並区南荻窪1丁目
−
11分
マンション
¥75,000
¥10,000
3階/7階建
東
1K
22.4m
2
H19/08
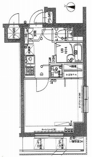
荻窪10分、バス・トイレ別の1Kタイプ、環状八号線通り沿い、東側バルコニーの為、朝の光が気持ち心地良い物件です。洋室も7畳でゆったりとできるのが魅力です。
49479
荻窪駅
東京都杉並区南荻窪1丁目
−
11分
マンション
¥77,000
¥6,000
1階/7階建
南西
1K
21.91m
2
H19/08
荻窪10分、バス・トイレ別の1Kタイプ、環状八号線通り沿い、東側バルコニーの為、朝の光が気持ち心地良い物件です。
このページのトップへ移動
不動産は
ご縁
と
タイミング
の賜物。
御早めにどうぞ。
惜しい〜
荻窪ハウジングさ〜ん、
◯◯な物件
探して〜!
時間がございましたらご覧下さいませ♪
荻窪の地域情報をブログで発信中