賃料 |
7.5万円 |
共益費/管理費 |
15,000円 |
|---|---|---|---|
敷金 |
- |
礼金 |
1ヶ月 |
保証金 |
- |
敷引_償却 |
- |
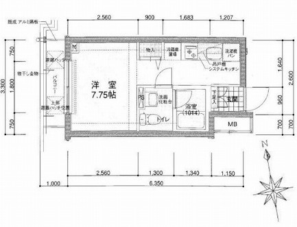
間取り |
1K |
築年月 |
2006/05(築19年) |
面積 |
20.15m²(6.09坪) |
階建 |
2階/4階建 |
所在地 |
東京都杉並区荻窪2丁目 |
||
交通 |
JR中央線荻窪駅まで 徒歩8分 |
お電話でのお問い合わせ
物件番号:1076
お電話でお問い合わせの際は、物件番号をお伝えください。
03-5397-8955
営業時間:10:00 AM - 7:00 PM
定休日:水曜日
ポイント
POINT
荻窪駅8分、南口より太田黒方面を抜け善福寺川近くにある。閑静な住宅街に立つ外観タイル貼りのドルチェシリーズの高級マンションです。バストイレ別・洗面台も温水洗浄便座トイレにあります。西向きで日当たりは良です。自転車があれば荻窪の自然を満喫できる物件ですよ♪
物件詳細DETAIL
建物構造 |
鉄筋コンクリート造 |
向き |
西 |
|---|---|---|---|
現況 |
居住中 |
入居時期 |
予定 |
間取詳細 |
(2F)洋7.7、 |
総戸数 |
- |
保険等 |
有 |
保証会社 |
|
契約期間 |
2年 |
更新料 |
新賃料の1ヶ月分 |
取引態様 |
仲介 |
仲介手数料 |
1ヶ月 |
駐車場 |
学区 |
||
諸費用 |
入居費用(概算) |
247,500円 |
|
周辺環境 |
|||
特色/設備 |
バストイレ別、ガスキッチン、室内洗濯機置場、エアコン、収納、洋室、バルコニー、CATV、エレベータ、オートロック、インターホン、宅配ボックス、二階以上、インターネット対応 |
||
情報更新日 |
2026年02月22日 |
次回更新予定日 |
2026年02月23日 |
※掲載されている物件データが現状と異なる場合は現状を優先します。
荻窪ハウジング株式会社COMPANY
所在地 |
東京都杉並区荻窪4丁目30-9 荻窪グリーンパーク301 |
||
|---|---|---|---|
免許番号 |
東京都知事免許(4)第91777号 |
||
会員 |
(公社)東京都宅地建物取引業協会
(公社)首都圏不動産公正取引協議会
|
||
電話番号 |
03-5397-8955 |
FAX番号 |
03-5397-8956 |
営業時間 |
10:00 AM - 7:00 PM |
定休日 |
水曜日 |
