|
||||||
| 住所 | 敷金 礼金 |
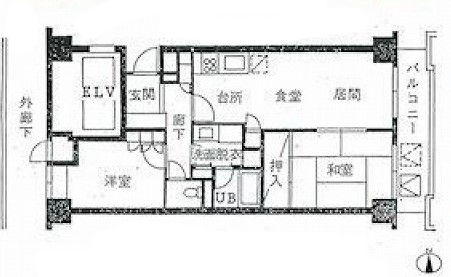
間取り 面積 |
タイプ 構造 |
入居時期 | 築年月 | 駐車場 |
|---|---|---|---|---|---|---|
| 東京都杉並区上荻3丁目 | 1ヶ月 1ヶ月 |
2LDK 51.05m2 |
マンション 鉄筋コンクリート造 |
予定 | 1989/08 | |
荻窪駅15分、北口より青梅街道を西荻窪方面に進み、八丁交差点を越えた先、荻窪警察署前にある分譲ファミリー仕様の賃貸マンションです。日当たり良・システムガス3口キッチン・収納・バストイレ別・追い炊き機能付きバス・独立洗面台・室内洗濯機置き場で快適ファミリー仕様です。クイーンズ伊勢丹やユニクロのプロムナード荻窪もすぐそば
| 物件番号 | 50963 | ||
|---|---|---|---|
| 交通 | JR中央線 荻窪駅 徒歩15分 | バス停最寄施設 | 荻窪警察署前 停歩1分 |
| 向き | 東 | 階/階建 | 7階/10階建 |
| 共益費 | ¥8,000 | 火災保険 | 要加入 |
| 保証金 | 敷引 | 1ヶ月 | |
| 契約期間 | 2年 | 取引態様 | 仲介 |
| 間取詳細 | |||
| 特色 | バストイレ別、ガスキッチン、室内洗濯機置場、エアコン、収納、洋室、バルコニー、追焚バス、システムキッチン、エレベータ、オートロック、インターホン、二階以上、インターネット対応 | ||
※掲載されている物件データが現状と異なる場合は現状を優先します
地図
|
地図を右クリックでルート検索が可能です。
|
位置情報に関するご注意:現在位置情報は精査中の為、正確ではない場合があります。あくまで参考程度の情報となります。
![]()
- 荻窪ハウジング 株式会社
- TEL:03-5397-8955
- FAX:03-5397-8956
- メールでのお問い合わせは↑ ↑



























