|
||||||
住所 | 敷金 礼金 |
間取り 面積 |
タイプ 構造 |
入居時期 | 築年月 | 駐車場 |
---|---|---|---|---|---|---|
東京都杉並区天沼3丁目 | 1ヶ月 1ヶ月 |
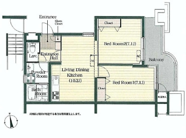
2LDK 55.08m2 |
マンション 鉄筋コンクリート造 |
予定 | 1987/04 | 空無 |
荻窪駅4分、青梅街道・教会通りより東京衛生病院前のマンションです。リニューアルされた充実した設備が売りです♪オートロック・フローリング・エアコン2台・システムキッチン・バストイレ洗面別・室内洗濯機置場ですよ。
物件番号 | 1582 | ||
---|---|---|---|
交通 | JR中央線 荻窪駅 徒歩6分 | バス停最寄施設 | |
向き | 東 | 階/階建 | 3階/3階建 |
共益費 | ¥6,000 | 火災保険 | 有 |
保証金 | 敷引 | ||
契約期間 | 2年 | 取引態様 | 仲介 |
間取詳細 | 洋7.0、洋7.0、LDK10.0 | ||
特色 | バストイレ別、ガスキッチン、室内洗濯機置場、エアコン、収納、洋室、バルコニー、CATV、システムキッチン、オートロック、インターホン、二階以上、最上階、インターネット対応 |
※掲載されている物件データが現状と異なる場合は現状を優先します
地図
地図を右クリックでルート検索が可能です。
|
位置情報に関するご注意:現在位置情報は精査中の為、正確ではない場合があります。あくまで参考程度の情報となります。
- 荻窪ハウジング 株式会社
- TEL:03-5397-8955
- FAX:03-5397-8956
- メールでのお問い合わせは↑ ↑
